










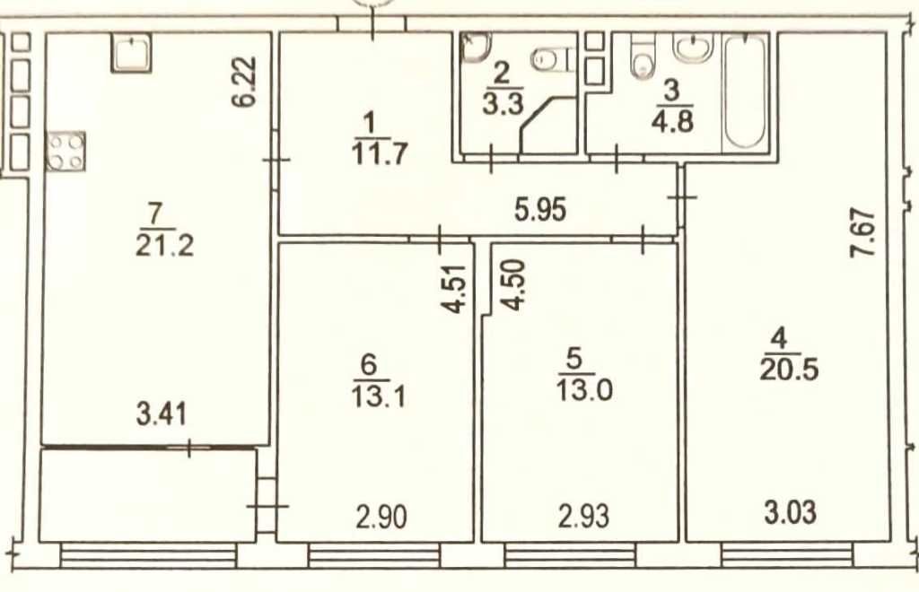
3-х кімн. квартира у ЖК "Галактика", вулиця Євгена Сверстюка, 6Д, з готовим дизайнерським проектом. Будинок зданий 2021 року, документам 3 роки. 13/25 поверхового монолітно-цегляного будинку. Площа 92,1кв.м. Кімнати роздільні. Лоджія із кухні. 2 санвузли. Вікна у двір. У комплексі є генератори, 2 підземні обладнані бомбосховища. Відеоспостереження: на кожному поверсі по 5 відеокамер. У ЖК знаходяться не тільки магазини, салони, аптека, а й 2 дитячі садки, ліцей, гімназія. На просторій території - 2 футбольні, баскетбольне поле, корт для великого тенісу, столи для тенісу настільного, дитячі, спортивні майданчики і навіть майданчик для дресирування собак. І за 5 хвилин ходьби від будинку набережна Русанівського каналу з прокатом човнів, катамаранів. Зовсім недалеко, на Русанівці, пляж. Станція метро Лівобережна -10 хвилин пішки. Документи в порядку і є свіжа перевірка лічильника тепла. Телефонуйте! Відповім на запитання, домовимося про перегляд. Эксклюзивный договор.



UA






