

















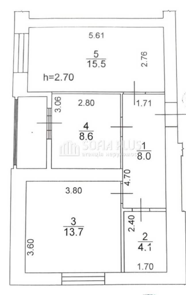
Ірпінь, вулиця Григорія Сковороди, буд.29. ЖК "Фортуна 2" (2018 р.) Продається квартира з двома окремими кімнатами на високому другому поверсі 10-ти поверхового цегляного будинку. Квартира наповнена світлом, дуже тепла. Усі вікна виходять надвір. Двоконтурний газовий котел (завжди гаряча вода і тепло, що регулюється). У квартирі сучасний ремонт, чудовий стан. Все, що бачите на фото, залишається в квартирі. Територію комплексу закрито. У дворах немає машин безпека, чистота, свіже повітря. У самому комплексі і поряд з ним безліч магазинів, різних сервісних служб. Дерева, декоративні рослини лавки, дитячі, спортивні майданчики, кафе. Неподалік спортивний комплекс з басейном. Спокійна, розмірена, комфортна атмосфера і водночас нова траса дозволяє швидко дістатися Києва. Ексклюзивний договір.



UA






