










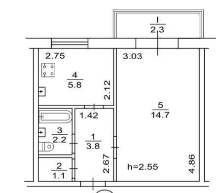
Продається однокімнатна квартира за адресою вул. Маршала Рокоссовського 3-А, 8/9 поверх. Загальна площа 29,9 кв.м, житлова 15 кв.м, кухня 6 кв.м. Стан під повний ремонт: старі покриття, застаріле оздоблення, усе потребує оновлення, але при цьому квартира має зручне планування з окремою спальнею та заскленим балконом, що є рідкістю для такої площі. Санвузол сумісний. Будинок розташований у хорошому, заселеному районі з транспортом, магазинами та всією необхідною інфраструктурою. Квартира підійде тим, хто хоче зробити простір повністю під себе і не переплачувати за чужий ремонт чисте поле для змін там, де вже є вдала основа. Давно працюю по програмі Держмолодьжитло (ДМЖ), якщо не підійде ця квартира - допоможу знайти іншу. Але часу замало - тому краще починати раніше) На звязку 24/7, відповім на усі запитання!



UA






