










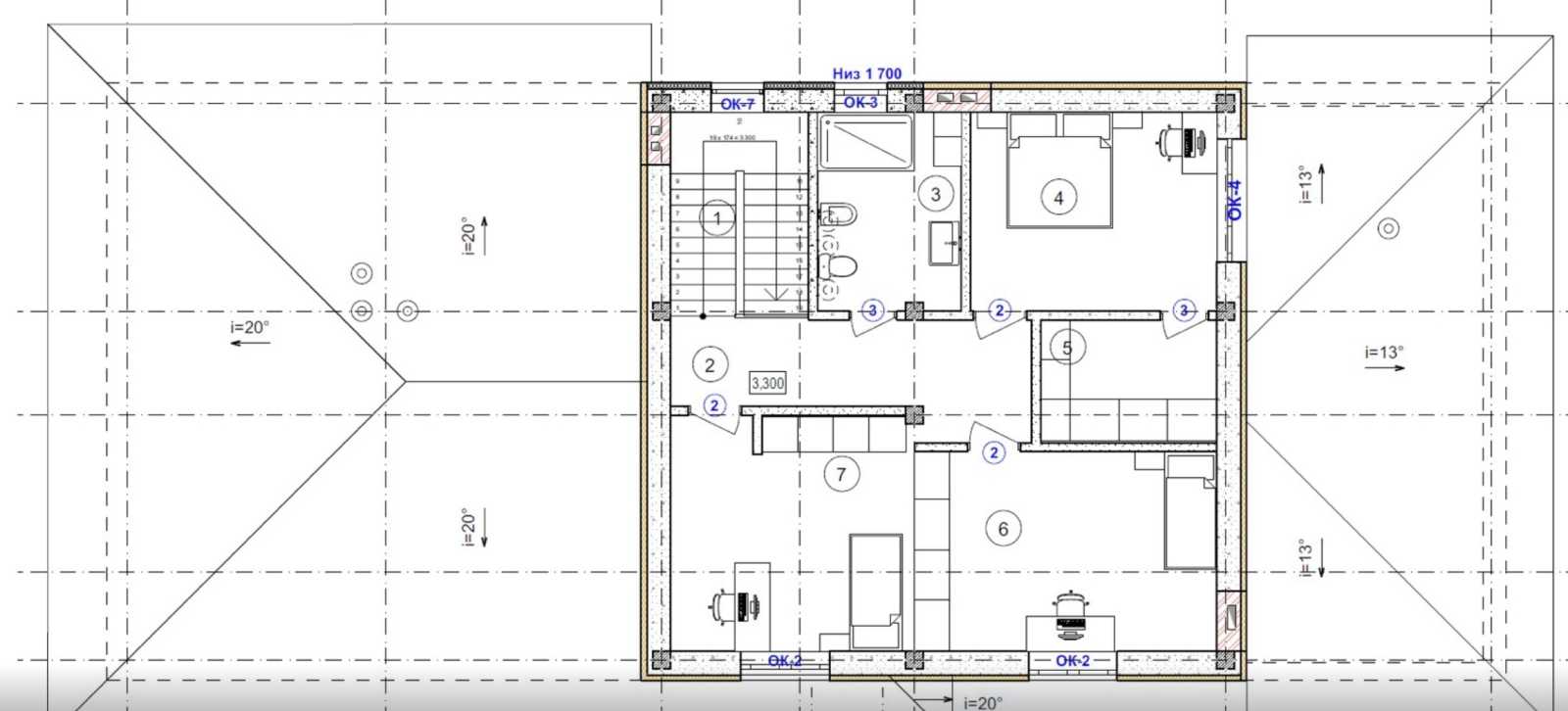
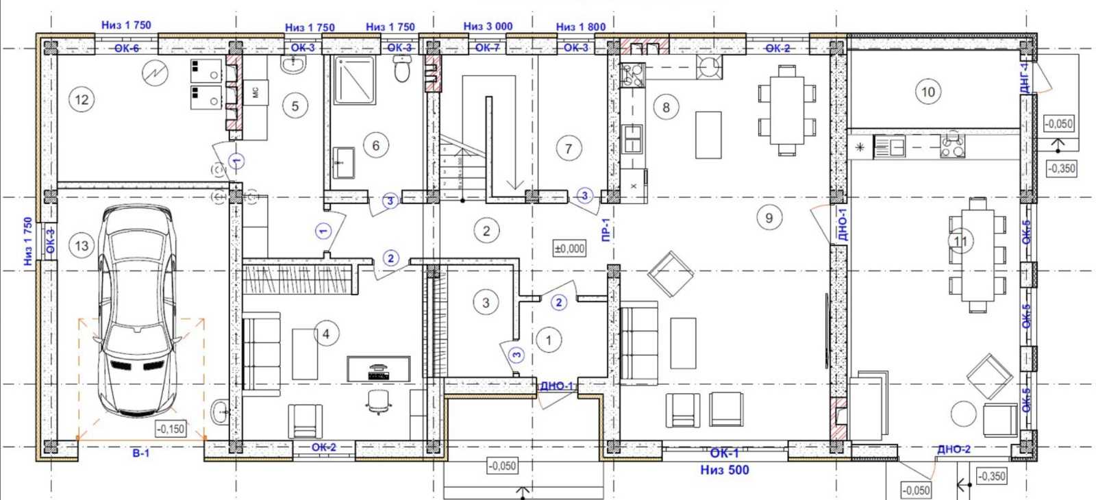
Продається сучасний будинок у розвиненому житловому масиві Запоріжжя вул. Станіславського (М. Яковченка), 43Б Якщо ви шукаєте будинок, збудований для себе та з використанням якісних матеріалів, цей об’єкт стане ідеальним вибором. Розташування у тихому, зеленому районі з повною інфраструктурою поруч робить його чудовим варіантом як для життя, так і для інвестиції. Характеристики будівлі Матеріал стін: газобетон 400 кг/м (400/200/600) теплий, міцний, енергоефективний. Покрівля: м’яка бітумна черепиця з утепленням сучасне, надійне та довговічне рішення. Роки будівництва: 20212022. Стан: будинок не введений в експлуатацію, що дозволяє завершити проєкт під свій стиль та потреби. Проєкт та фото/відео звіти будівництва у наявності. Комунікації На ділянці вже підключені: вода, електроенергія 15 кВт, 3 фази. Газ по вулиці, з можливістю підключення. Асфальтований під’їзд, сучасне освітлення вулиці. 1 власник. Локація (одна з ключових переваг) Будинок розташований у майже центральній частині екологічно чистого житлового масиву. У радіусі 500 метрів: ТЦ Амстор, супермаркети: Сільпо, АТБ, Варус, зупинки транспорту, аптеки, банки, школа, садочок, сервісні об’єкти. Поруч ліс та берег річки Дніпро, ідеальні для прогулянок та активного відпочинку. Переваги об’єкта Зведений із дотриманням високих стандартів та якісних матеріалів. Сучасне, продумане планування. Локація, що стабільно зростає в ціні. Дуже тиха, повністю заселена житлова вулиця з новим освітленням та асфальтом. Пишіть у месенджери, телефонуйте з радістю надам усю додаткову інформацію та покажу об’єкт у зручний для вас час. Розглянемо всі пропозиції по ціні. Деталі Будинок, 2 поверхи, 5 кімнат. Площа ділянки 10 соток. Планування кімнат Роздільне. У будинку є . Загальний стан будинку - Без ремонту. Торг доречний, Терміново, Прямий продаж, Ексклюзивний договір. Без комісії



UA






