
















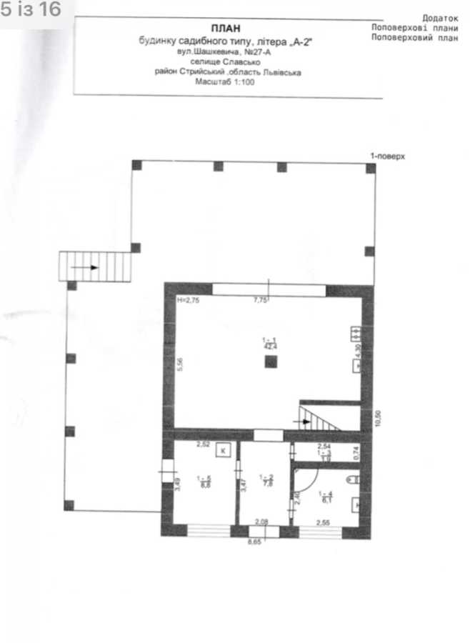
ПРОДАЖ БУДИНКУ Адреса село Славське, вулиця Шашкевича, 12, Львівська область. Кількість кімнат чотири Поверховість двоповерховий будинок. Матеріал стін цегла Земельна ділянка 12,35 соток, огороджена. Призначення для будівництва і обслуговування житлового будинку. Загальна площа будинку 134.1 кв.м, житлова 79.9 кв.м, кухня 45кв.м, гостьовий будинок - 70м2 В будинку зроблений авторський ремонт. Опалення газовий котел, електричний котел, камін. Підігрів підлоги на першому поверсі , у санвузлах та коридорі на другому поверсі. Санвузли два суміжних. Перший поверх будинку включає: кухню-вітальню, котельню, санвузол. Другий поверх: включає три житлові кімнати та санвузол. Дві великі тераси: 55 кв.м та 42 кв.м. Наявні комунікації: електрика 17 кВ, свердловина 28 м, септик . газ. Особливості даного будинку: є те, що він розташований на пагорбі з шикарним краєвидом, зокрема на гору Захар Беркут. Зручний заїзд легковим автомобілем в любу пору року. Цегляний, надійний та енергоефективний будинок, наявний просторий гараж площею 45 кв.м (висота 2,2 м). На території розташована господарська будівля площею 70 кв.м, що включає: гостьову кімнату, сауну, котельню з електричним котлом,душову. Проєкт ландшафтного дизайну у подарунок. Фундамент залізобетонний 1,2 м, утеплений, з гідроізоляцією (контурна мембрана). Перекриття між поверхами залізобетонне, сходи також залізобетонні. Утеплення фасаду пінопласт 15 см, щільність 60. Дах накритий німецькою металочерепицею та утеплення ватою 20 см, встановлено громовідвід. Вікна VEKA, 8-камерні, енергоефективні. Камін із розведенням тепла по кімнатах та загільзованими виходами. Виводи під відеонагляд. Автоматичні ворота у гаражі та на в’їзді. При в’їзді облаштовано водовідведення. Зарядка для електромобіля 3 фази. Поруч з будинком: (школа, дитячий садок, супермаркет, відділення нової пошти, аптеки, зупинка громадського транспорту, тощо). Код обєкта: 4597



UA






