











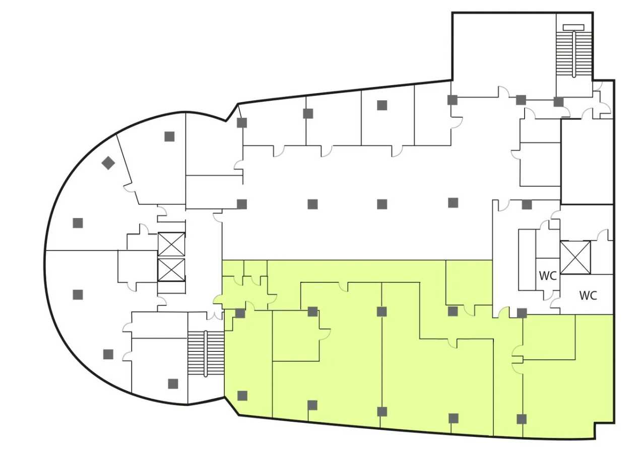
Оренда офісу метро Лівобережна 395 кв.м. Бізнес-центр Лівобережний Дніпровський район, вул. Євгена Сверстюка,2А Площа 395,00 кв.м. 4-й поверх Найкраще офісне приміщення на Лівому березі! Новий сучасний ремонт. Є вентиляція, кондиціонування, відеоспостереження, цілодобова охорона, СКС. Планування: - кабінетне та open space - санвузол - кухня Приміщення здається без меблів Встановлений генератор, на всю будівлю. Оптоволоконний високошвидкісний інтернет. Підземний паркінг працює, як укриття. Є можливість додатково орендувати необхідну кількість паркомісць. Метро Лівобережна 5 метрів пішки. Вся інфраструктура в 5-ти хвилинній доступності. Оплата по безготівковому рахунку. Компанія платник єдиного податку. Орендна ставка 8,4 долари США/м2 ОРЕХ 3,6 долари США/м2 Комунальні послуги за показниками лічильників



UA






