





















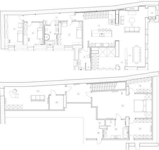
Унікальна дворівнева квартира у самому серці старого Києва. Ярославів Вал 16 Історична памятка, побудована в 1897 році і повністю відреставрована в 2005 році. Має сучасну інженерію та нещодавно встановлений ліфт. Площа квартири 360 квадратних метрів на двох рівнях (6 та 7 поверх). Зал площею 70 кв.м, з’єднаний з кухнею площею 40 кв.м, ідеально підходить для дипломатичного прийому та сімейних зустрічей. Оснащений першокласною швейцарською технікою VZug і Miele , котел Vissmann з клімат-контролем у кожній кімнаті та канальний кондиціонер Mitsubishi Electric. Його система вентиляції з низьким рівнем шуму, яка відповідає медичним стандартам очищення повітря, забезпечує неперевершену якість повітря в приміщенні. Квартира бездоганно оброблена натуральною штукатуркою, доповнена паркетом і мармуровою підлогою, а також автентичні дерев’яні елементи. Квартира оснащена високоякісними сантехнічними змішувачами Alpi та 5-ступінчастою системою очищення води Ecosoft. Джерело безперебійного живлення базується на резервному акумуляторі, системах безпеки Wired for Ajax і Wi-Fi професійного рівня. У квартирі є алюмінієві вікна Alumil і Vilux, моторизоване розсувне покриття тераси та дах, виготовлений з міді. Квартира легко контролюється через систему розумного дому KNX, керуючи освітленням, вентиляцією, опаленням та інженерними системами. Ці апартаменти мають терасу та балкон, звідки відкривається захоплюючий вид на історичний міський пейзаж Гостьова зона 150 кв.м, 2 ванні кімнати та 3 багатофункціональні кімнати на першому поверсі та другому головному поверсі зі спальнею, ванною кімнатою, кабінетом та двома гардеробними. Відчуйте поєднання сучасної розкоші та історичного шарму в цьому ретельно продуманому житловому просторі, ідеальному для тих, хто шукає витончену елегантність і неперевершену зручність В будинку є індивідуальне укриття. Ціна 7000$



UA






