





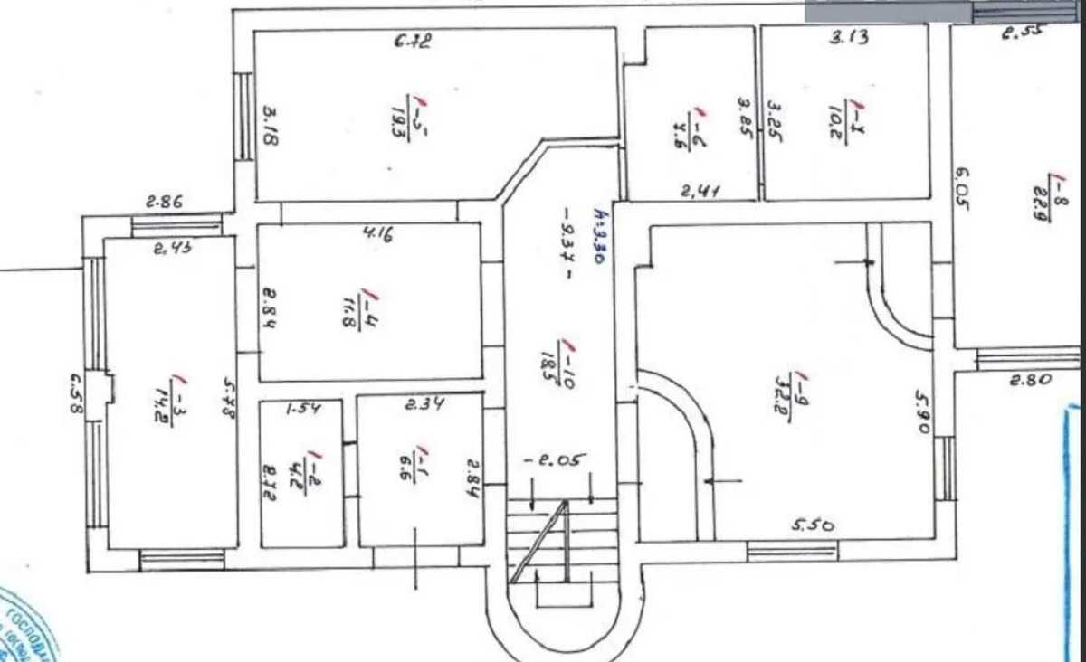
Просторий будинок для великої родини біля Києва! Ваш комфорт і свобода у власному просторі! Продається будинок на вулиці Малинній, 5 у селі Петропавлівському чудовий вибір для тих, хто мріє про затишне життя неподалік столиці. До Києва всього 1520 хвилин їзди комфортною дорогою, що робить локацію ідеальною для щоденного міського ритму. Триповерховий цегляний будинок із сімома кімнатами справжня знахідка для великої родини. Площа та продумане планування дозволять облаштувати особистий простір кожному. Вже виконано чорнову штукатурку, підєднано газ, заведено та розведено по всіх рівнях електроенергію 30 кВт, обладнано дві свердловини й септик. Є можливість завершити оздоблення виключно під власні вподобання. Ділянка правильної форми, кутова зручна для облаштування саду, зони відпочинку, паркування авто. Район активно заселяється, формуючи дружнє та комфортне середовище для життя. Поруч зупинка громадського транспорту, школа, дитячий садок, амбулаторія, магазини та ринок усе поруч, щоб ваш побут був максимально зручним. Якщо ви шукаєте гармонійне поєднання ціни, якості та вигідного місця розташування цей будинок точно вартий вашої уваги. Можливий обмін на вашу нерухомість. Усі подробиці про будинок та про його придбання за телефоном. Телефонуйте у будь-який час! Ми завжди раді вам допомогти! Надаємо повний спектр послуг з купівлі та продажу квартир та будинків. Великий досвід допомоги по купівлі квартир за державними програмами: 1) Є-оселя 2) Житло для ВПО та військових (постанова 280) 3) Сертифікат на зруйноване житло З нами безпечно, якісно, вигідно!



UA






