























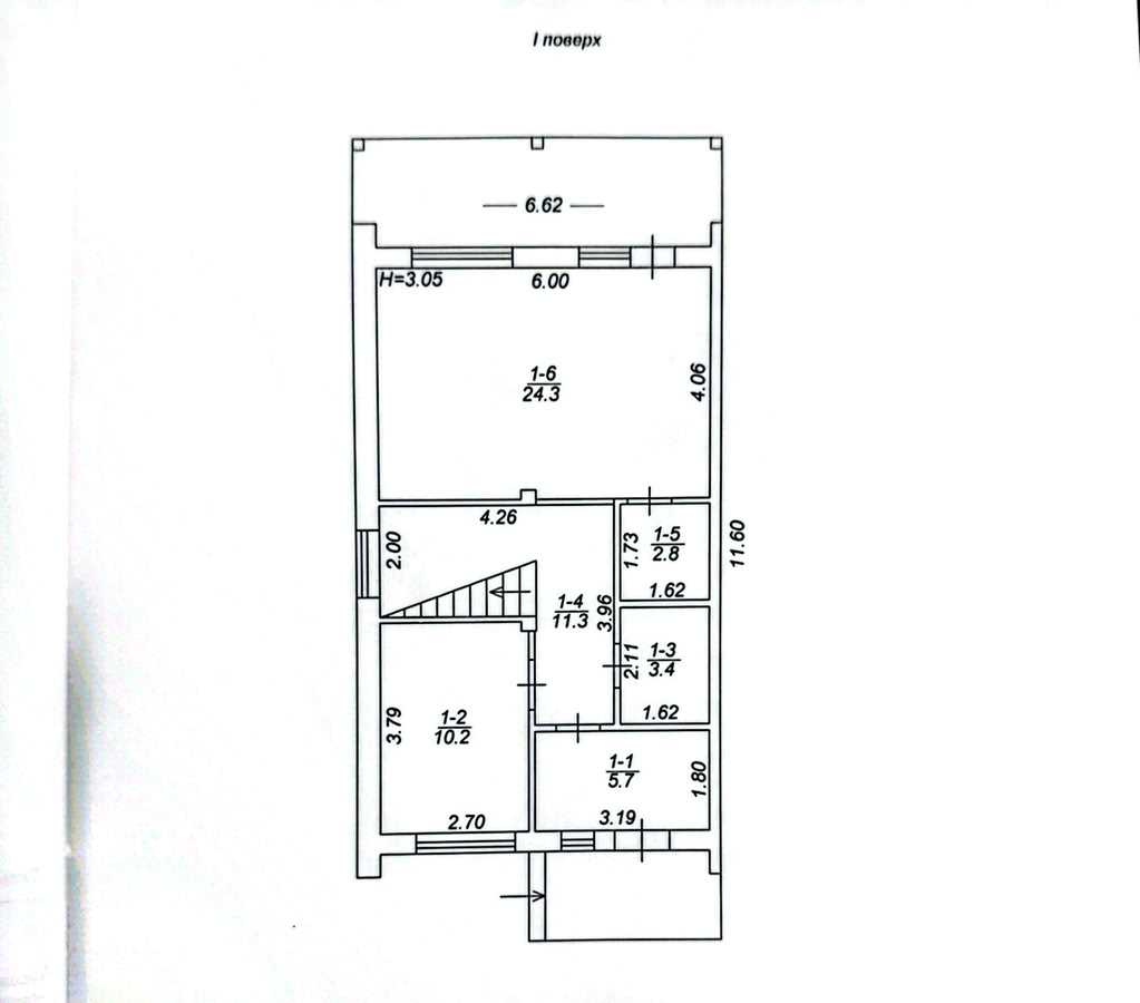
Дуплекс з можливістю 2-рівневого планування! Простір для життя, природа поруч і вигідна інвестиція! Продається сучасний дуплекс у котеджному містечку Крюківщини, всього за 7 км від ТРЦ Мегамаркет. Це місце, де міська інфраструктура поєднується з природною гармонією: за парканом ліс, а поруч школи, садочки, магазини, транспорт і навіть можливість облаштувати власний кабінет чи додаткову спальню на другому рівні. Будинок має площу 120 м2, додатковий мансардний поверх і простору терасу з виходом на зелену зону. Ділянка 2,05 сотки, з власним двором, заїздом і мангальною зоною. Конструкція надійна: монолітно-стрічковий фундамент, стіни з теплого керамоблоку, утеплення мінеральною ватою, дах металочерепиця з паробар’єром. Вікна двокамерні склопакети REHAU, фасад і вхідна група з екологічного термодерева. Підведено електрику 15 кВт (на балансі Київенерго), є власна свердловина та септик. Планування передбачає три окремі кімнати, два санвузли, гардеробну, велику кухню-вітальню з панорамними вікнами, а також можливість облаштування додаткової кімнати з вікном під санвузол. Простора тераса ідеальне місце для вечірнього відпочинку або ранкової кави. Котеджне містечко нове, з приємним сусідським оточенням, охайними вулицями та атмосферою спокою. Тут легко дихати, зручно жити й вигідно вкладати кошти. Завдяки близькості до комплексу A-Клаб та активному розвитку району, ціни на нерухомість стабільно зростають. Це не просто житло, а можливість створити власний простір у передмісті Києва, де кожен день починається з тиші, свіжого повітря і впевненості в завтрашньому дні. Ціна 85000 або найкраща пропозиція. Можливий обмін на вашу нерухомість. Усі подробиці про будинок та про його придбання за телефоном. Телефонуйте у будь-який час! Ми завжди раді вам допомогти! Надаємо повний спектр послуг з купівлі та продажу квартир та будинків. Великий досвід допомоги по купівлі квартир за державними програмами: 1) Є-оселя 2) Житло для ВПО та військових (постанова 280) 3) Сертифікат на зруйноване житло З нами безпечно, якісно, вигідно!



UA






