Close
Тарифи user-logo Контакти user-logo Допомога user-logo
№1007428 Активне
Продам 4-к квартиру, Київ, Оболонський, 300825 $
Опубліковано: 30.01.2026 22:00
Загальна інформація
Адреса: Київська, Київ, Оболонський , Оболонский просп. , 6а
4 кімнати
16 ⁄ 17 поверх
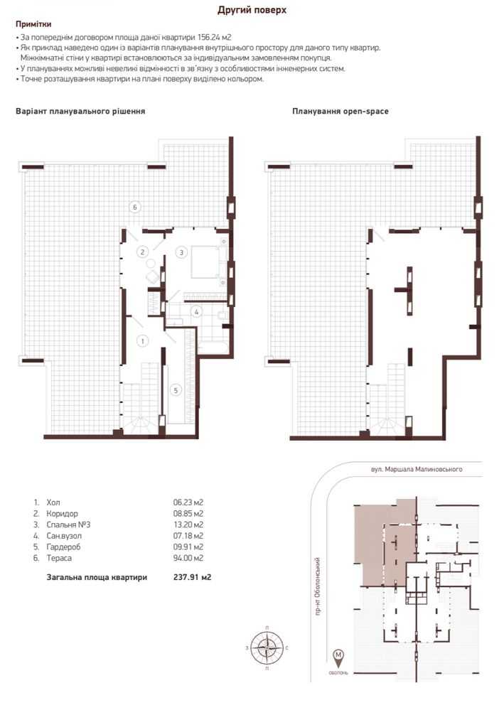
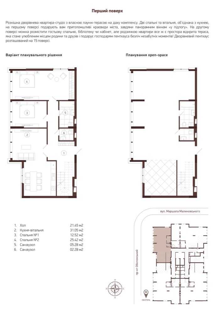
237.9 / 31 м² площа
Опис

Продам дворівневий пентхаус. Чудовий, світлий, з дуже гарним плануванням. Площа 171,9 м2 та велика тераса 94 м2. Кухня вітальня 31 м2. Спальні 25,5 та 12,5 метрів. Два санвузли на першому поверсі. На другому поверсі спальна кімната 13,2 м2, гардероб 10 м2 та велика тераса 94 м2.

Тарифи
Контакти