






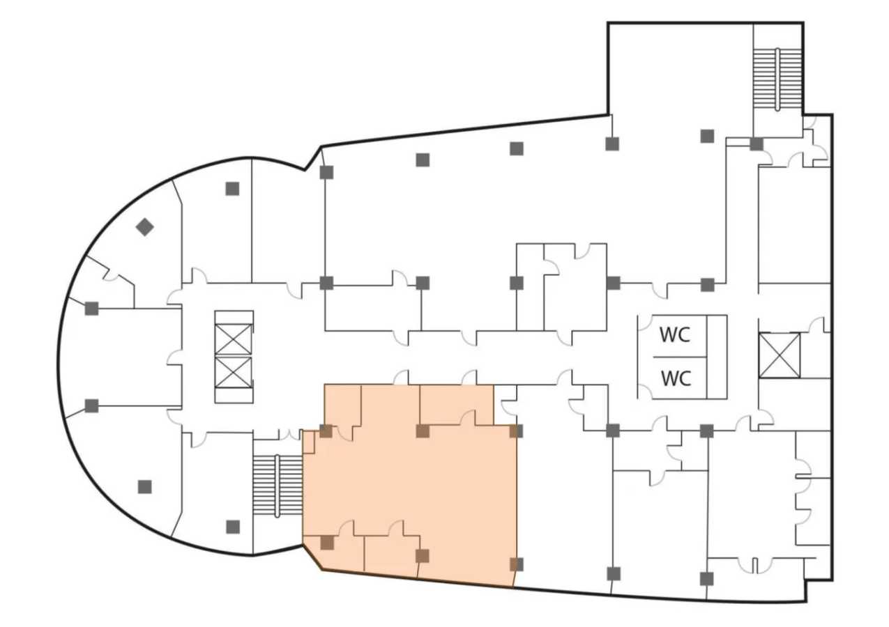
Оренда офісу метро Лівобережна 132 кв.м. Бізнес-центр Лівобережний Дніпровський район, вул. Євгена Сверстюка,2А Площа 132.38 кв.м. 5-й поверх Новий ремонт. Є вентиляція, кондиціонування, відеоспостереження, цілодобова охорона, СКС. Планування: - кабінетне та open space Приміщення здається без меблів Встановлений генератор, на всю будівлю. Оптоволоконний високошвидкісний інтернет. Підземний паркінг працює, як укриття. Є можливість додатково орендувати необхідну кількість паркомісць. Метро Лівобережна 5 метрів пішки. Вся інфраструктура в 5-ти хвилинній доступності. Оплата по безготівковому рахунку. Компанія платник єдиного податку. Орендна ставка 350 грн./м2 ОРЕХ 150 грн./м2 Комунальні послуги за показниками лічильників



UA






