Close
Тарифи user-logo Контакти user-logo Допомога user-logo
№1010886 Активне
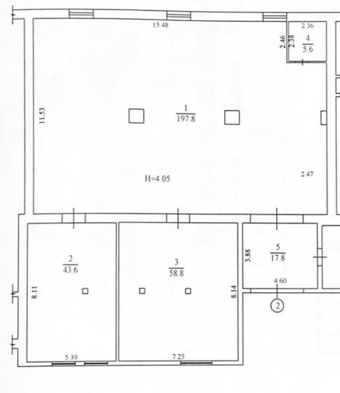
Продам виробниче приміщення, Київ, Дарницький, 150000 $
Опубліковано: 20.03.2026 13:51
Загальна інформація
Адреса: Київська, Київ, Дарницький , Евгения Харченко ул. , 42
310 м² площа
10 сот. ділянка
Опис

вулиця Євгенія Харченка 42. Дарницький район. Бортничі. Продаж нежитлового приміщення, Окремо стояча будівля. S-310м.кв., Окремий вхід. Висота стелі 4 метри. Матеріал стін цегла. Охоронна сигналізація. Поруч склади Баядери. Відео перегляд по запиту. без комісійних!

Тарифи
Контакти