
















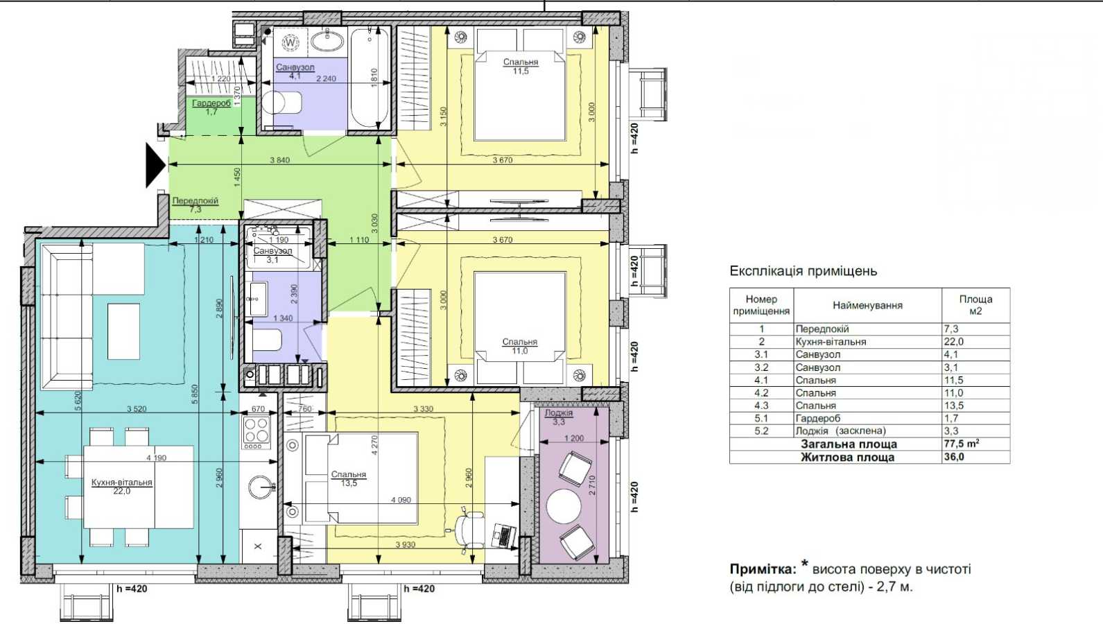
Супер!Сдается Метро Нивки 25 мин.ходу. ЖК.Файна Таун.ул.Салютная 2.к20. 3-х комнатная раздельная квартира. Площадь 77.5 / 36 / 22м2. Этаж 2/5. Высота 2.7м2. В квартире Покрашены стены и пол. Чтобы не было пыли. Есть проводка, включатели. В санузле есть унитаз,но нет душевой кабины, В помещениях нет дверей. Нет кухни. Сдается долгосрочно для жилья , а также можно под склад. Идеально наверное для строительной бригады. ЖК.Файна Таун , Концепция город в городе с круглосуточной охраной,видеонаблюдение, с закрытой территорией, без машин. Инфраструктура: Спортивные площадки, BBQ 2 летних бассейна, Гимназия А+ Пешеходная алея с велодорожкою, детскими зонами и многое другое. Супер цена 6000 грн/ мес.+коммунальные. Оплата при заселении 6000 + 6000( залог) + 6000 грн.(комиссия агентства). Риелтор Дмитрий.



UA






