























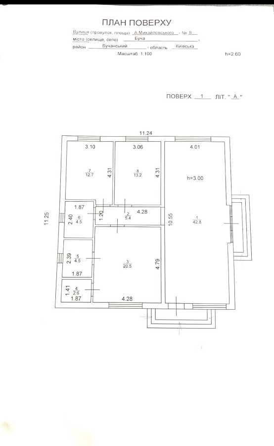
Будинок в Лісовій Бучі з гарними сусідами в топ локації для приватного життя! Пропоную звернути увагу на будинок в Бучі по вул Малиновського 8. Продумане планування для зручного проживання сімї з 2ма дітками або сімї яка проживає з батьками - виділена зона спільного відпочинку в великій кухні-вітальні, передбачено мастер спальня з власним гардеробом та санвузлом, окремі дві дитячих кімнати розташовані навпроти батьківської , у ваших діток буде своя приватна територія. Просторий передпокій забезпечує вільне переміщення до кімнат будинку. Все це робить будинок затишним та комфортним. До будинку підведено газ, встановлено котел, облаштована власна свердловина та септик каналізування, підведено електроенергію. Будинок готовий до проведення ремонтних робіт під ваш смак. Розміщення будинку в глибині ділянки дозволяє комфортно користуватися просторим двором: розмістити зону барбекю, встановити альтанку, розгортати басейн або зробити зону для дитячих розваг. Можливе комфорте паркування 3х авто. Територія облаштована парканом з окремою хвірткою та розпашними воротами. Обжита вулиця, тільки нові будинки поряд, сусіди проживають на постійній основі, вулиця з освітленням. Якщо у вас покупка за готівку, то ціна вказана з оформленням - більше ніяких витрат ви не несете! Розгдаємо продаж під іпотеку, держпрограми , розтермінування. Проведу перегляд у любий зручний для вас час! Для запису на перегляд - телефонуйте за номером вказаним в оголошенні. Зробіть собі подарунок на Новий Рік!



UA






