





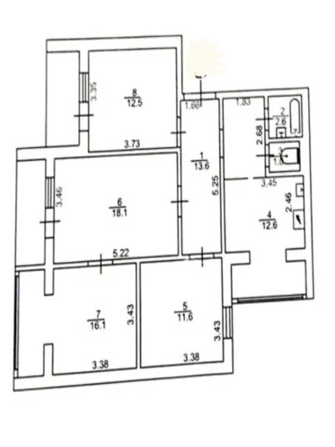
Простора квартира біля Академмістечка! Ваша мрія про ідеальне житло починається тут! Продається 4-кімнатна оселя, яка ідеально підійде для комфортного проживання великої родини. Розташована за адресою: вулиця Чорнобильська, 20, у добре розвиненому районі Києва. Помешкання знаходиться на 6 поверсі 16-поверхового будинку. Житло вирізняється зручним плануванням, яке дозволяє раціонально використовувати кожен м2. Зроблено косметичний ремонт, що дозволяє новим власникам одразу заселитися та мінімізувати додаткові витрати на старті. Всі кімнати окремі та просторі це ключова перевага для забезпечення приватного простору кожного члена сімї. Питання меблювання та технічного оснащення підлягає домовленості з поточними власниками. Будинок зведений у 1989 році. Вдале розташування забезпечує тихий та охайний двір, створюючи затишну атмосферу. Облаштована прибудинкова територія та відсутність метушні є важливими факторами для якісного відпочинку після робочого дня. Локація має надзвичайно розвинуту інфраструктуру. Поруч розташовані гімназія, ліцей та садочок, що є незаперечною перевагою для родин з дітьми. Для швидких покупок та комфорту супермаркет Новус та відділення Нова Пошта. Це місце, де дійсно є все необхідне для повноцінного життя. Ключова перевага винятково зручна транспортна розвязка. До станції метро Академмістечко всього 7 хвилин пішки, що гарантує швидкий доступ до будь-якої точки столиці. Це ідеальний варіант просторої домівки з окремими кімнатами та близькістю до метро, що забезпечує комфортне життя для вашої великої родини. Ціна 92 800 або найкраща пропозиція. Можливий обмін на вашу нерухомість. Усі подробиці про квартиру та про її придбання за телефоном. Реальна квартира! Телефонуйте у будь-який час! Ми завжди раді вам допомогти! Надаємо повний спектр послуг з купівлі та продажу квартир та будинків. Великий досвід допомоги по купівлі квартир за державними програмами: 1) Є-оселя 2) Житло для ВПО та військових (постанова 280) 3) Сертифікат на зруйноване житло З нами безпечно, якісно, вигідно!