





















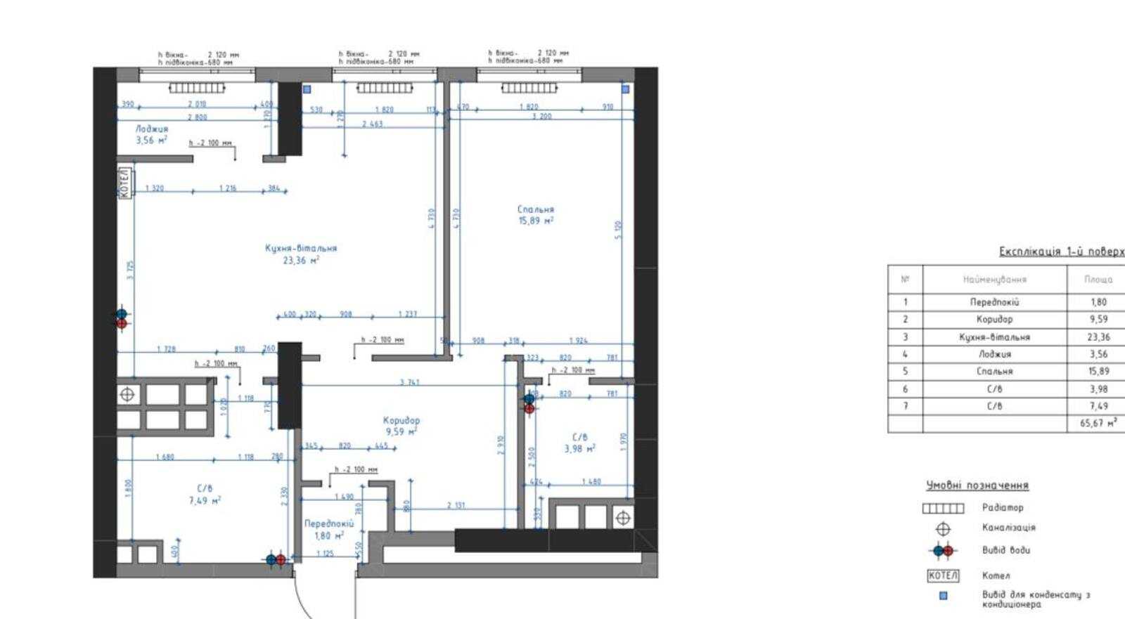
Продається дизайнерська квартира в ЖК Метрополіс по вул. Академіка Заболотного, 1А, Голосіївський район. Площа квартири 63м2. Поверх 34. Функціональне планування: - кухня - вітальня з обідньою зоною - майстер-спальня - гостьовий санвузол - гардеробна кімната Квартира укоплектована всією необхідною технікою та меблями. Вся техніка - Whirpool та Gorenje Встановлений котел для індивідуального опалення, кондиціонери в кожній кімнаті, бойлер. У будинку : дизайнерське лоббі з зоною відпочинку, косьєрж-сервіс, цілодобова охорона та відеоспостереження, 4 швидкісні безшумні ліфти Mizui. Закрита охоронювана територія. ЖК Метрополіс - сучасний комплекс бізнес-класу від надійного забудовника DIM. Комплекс будується за концепцією місто в місті. Має власний ландшафтний парк 2 Га, дошкільний навчальний заклад, дитячі та спортивні майданчики, бігові та велодоріжки, підземний та гостьовий паркінг. На перших поверхах будинків є все необхідне для комфортного життя: від продуктового супермаркету до фітнес-клубу. Також на території передбачені зона барбекю, кінотеатр та фонтани. Комплекс розташований в унікальній точці мегаполісу, на перетині урбаністичного Києва та розмаїтої природи Голосіївського лісу. Відмінна транспортна розвязка, до метро Теремки та Іподром - 5-7 хв пішки. До центру столиці - 20 хвилин на автомобілі. В квартирі проживають орендарі. Перегляди за попередньою домовленістю!



UA






