





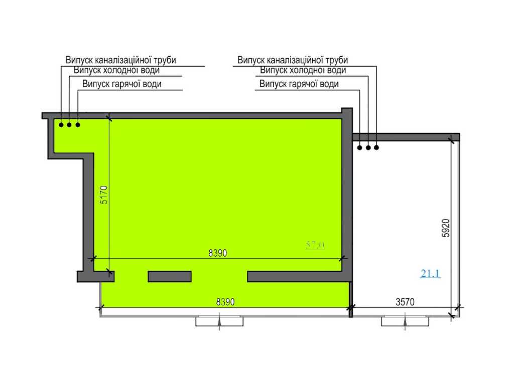
Без комісії для покупця! Продається фасадне комерційне приміщення площею 57 м2 у самому центрі Печерського району, за адресою: Київ, вулиця Байчука, 6А. Об’єкт розташований на першому поверсі житлового будинку, має зручний окремий вхід та великі вітринні вікна, що виходять безпосередньо на тротуар. Завдяки цьому приміщення добре проглядається з вулиці та відзначається стабільним пішохідним і автомобільним трафіком. На даний момент у приміщенні працює продуктовий магазин Misto Market, що робить цю пропозицію особливо цікавою для інвестора, адже забезпечено стабільний орендний дохід. Планування дозволяє ефективно використовувати простір, а наявність усіх необхідних комунікацій, включаючи підведення холодної та гарячої води, а також каналізацію, створює можливість для подальшого розвитку бізнесу у різних напрямках. Локація об’єкта підкреслює його інвестиційну привабливість. У кількох хвилинах ходьби розташовані продуктові магазини, аптеки, школи та дитячі садки, працює поштове відділення та відомі торгові точки, такі як EVA та Nova Poshta. Неподалік знаходиться ТРЦ Навігатор, а також Національний ботанічний сад імені Миколи Гришка, який є місцем тяжіння мешканців і гостей міста. Район активно розвивається, поруч знаходиться станція метро Дружби народів, яка забезпечує швидке та зручне сполучення з іншими районами міста, що суттєво підсилює трафік і робить цю локацію особливо привабливою для бізнесу. Це приміщення може стати вигідним рішенням як для тих, хто шукає готовий бізнес із діючим орендарем.